Skip To Content

1201 Wood Hill Place , #1201

Jacksonville, FL 32256
  • $137,500
  • STATUS: Closed
  • ON SITE: 286 Days
  • MLS #: 2066273
Sold - 05/30/2025
$137,500
SOLD - 05/30/2025
  • 2
    BEDS
  • 0.04
    ACRES
  • 2
    BATHS
  • 0
    1/2 BATHS
  • 1,191
    SQFT
  • $0
    $/SQFT
Neighborhood:
Type:
Condo
Built:
1984
County:

School Information

Elementary School:
Middle School:
High School:

Description

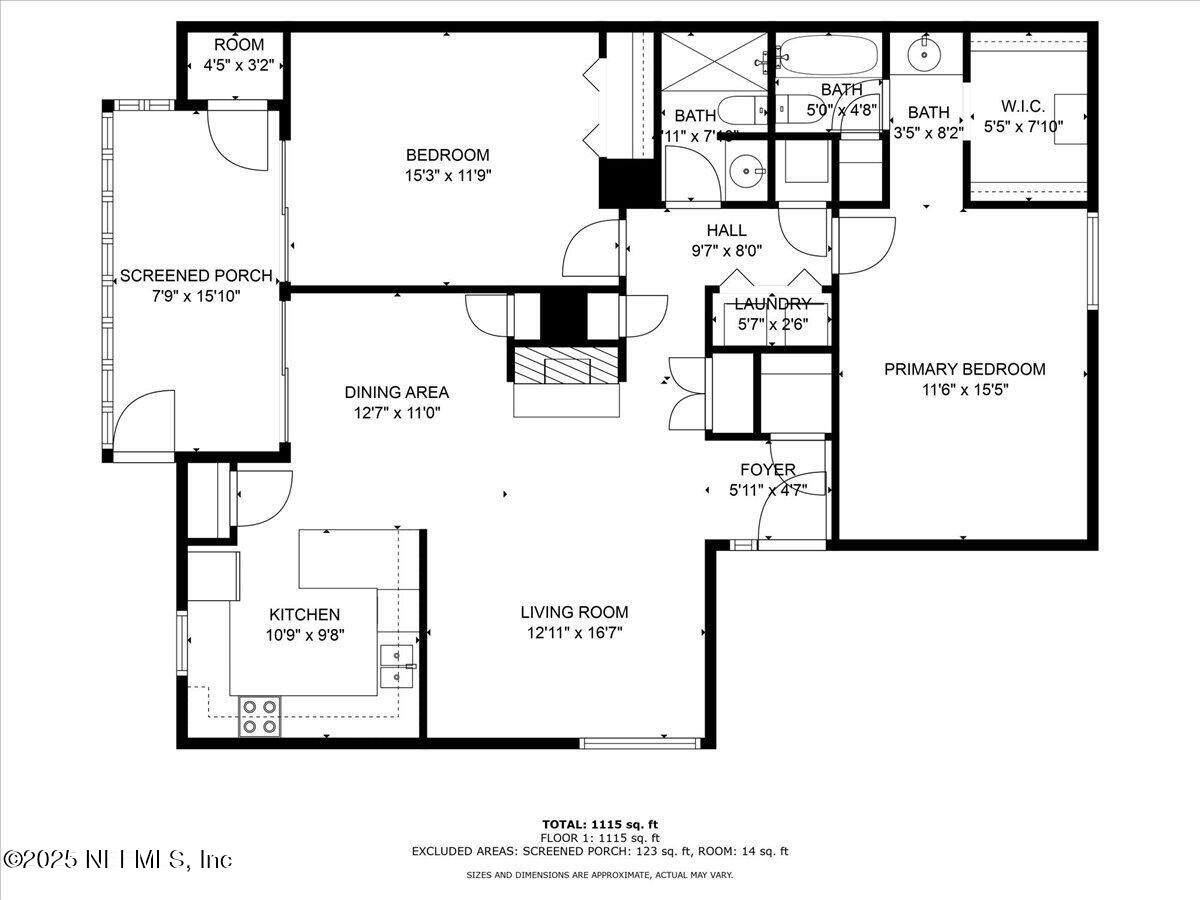
Hillwood is Centrally located to everything in town and close to St. Vincents Southside, JTB, Town Center, Shops and Restaurants - This well laid out ground level end unit has Open Living Space w/Entry and Walkin Coat Closet, Living Room w/Wood Burning Fireplace & Wet Bar looking out onto the Pond, there is an open Dining Room & Original Kitchen, complete with Breakfast Bar, Screened Porch w/Storage Closet looking out onto the tree covered backyard area, The Primary Suite is spacious w/Ensuite Vanity, Private Water Closet, Tub and Shower & Walk-in closet w/Organizers, there is a Guest Bathroom and large Guest Bedroom w/Porch Access. The condo is ready for your updates and personal touch.

Monthly Payment Calculator



© 2025 Northeast Florida Multiple Listing Service, Inc. All rights reserved. The data relating to real estate for sale on this web site comes in part from the Internet Data Exchange (IDX) program of the Northeast Florida Multiple Listing Service, Inc. Real estate listings held by brokerage firms other than Engel & Volkers First Coast are marked with the listing broker’s name and detailed information about such listings includes the name of the listing brokers. Data provided is deemed reliable but is not guaranteed. Data last updated 2025-11-06T18:25:04.077.

Digital Millennium Copyright Act
www.evfirstcoast.com/homes/159669664
Print Image

1201 Wood Hill Place , #1201 Jacksonville, FL 32256

  • Price: $140,000
  • Status: Closed
  • On Site: 286 Days
  • Updated: 76 min ago
  • MLS #: 2066273
2
Beds
2
Baths
0
½ Baths
0.04
Acres
1,191
SQFT
$0
$/SQFT
1984
Built
Neighborhood:
Hillwood Condominium
County:
Duval
Area:
024-BAYMEADOWS/DEERWOOD
Elementary School:
Twin Lakes Academy
Middle School:
Twin Lakes Academy
High School:
Atlantic Coast
Property Description
Hillwood is Centrally located to everything in town and close to St. Vincents Southside, JTB, Town Center, Shops and Restaurants - This well laid out ground level end unit has Open Living Space w/Entry and Walkin Coat Closet, Living Room w/Wood Burning Fireplace & Wet Bar looking out onto the Pond, there is an open Dining Room & Original Kitchen, complete with Breakfast Bar, Screened Porch w/Storage Closet looking out onto the tree covered backyard area, The Primary Suite is spacious w/Ensuite Vanity, Private Water Closet, Tub and Shower & Walk-in closet w/Organizers, there is a Guest Bathroom and large Guest Bedroom w/Porch Access. The condo is ready for your updates and personal touch.
Exterior Features

Architectural Style Contemporary Body Type [] Construction Materials [] Entry Level 1 Exterior Features [] Fencing [] Lot Features [] Other Structures [] Parking Features AssignedGuestParking Lot Patio And Porch Features Rear PorchScreened Pool Features [] Road Surface Type Asphalt Roof Shingle Spa Features [] View Pond Waterfront Features Pond Waterfront YN Yes

Interior Features

Appliances DishwasherDryerElectric RangeElectric Water HeaterRefrigeratorWasher Cooling Central AirElectric Cooling YN Yes Fireplace Features Wood Burning Fireplace YN Yes Fireplaces Total 1 Flooring CarpetTile Furnished Unfurnished Heating CentralElectricHeat Pump Heating YN Yes Interior Features Breakfast BarCeiling Fan(s)Entrance FoyerOpen FloorplanPrimary Bathroom - Tub with ShowerWalk-In Closet(s)Wet Bar Laundry Features Electric Dryer HookupIn UnitWasher Hookup Rooms Total 0

Property Features

Accessibility Features [] Association Amenities Maintenance GroundsSpa/Hot TubTennis Court(s)Trash Association Fee 418 Association Fee Frequency Monthly Association Fee Includes InsuranceMaintenance GroundsMaintenance StructureTrash Association YN Yes Attached Garage YN No Cdd Fee YN No Current Use Residential Dpr Eligible YN No Electric [] Green Energy Efficient [] Green Water Conservation [] Listing Terms CashConventional New Construction YN No Possession Close Of Escrow Property Attached YN Yes Property Condition [] Property Sub Type Condominium Security Features [] Senior Community YN No Sewer Public Sewer Unit Type End Unit Utilities Cable AvailableElectricity ConnectedWater Connected Water Source Public

Listing courtesy of WATSON REALTY CORP: 904-221-7525.


© 2025 Northeast Florida Multiple Listing Service, Inc. All rights reserved. The data relating to real estate for sale on this web site comes in part from the Internet Data Exchange (IDX) program of the Northeast Florida Multiple Listing Service, Inc. Real estate listings held by brokerage firms other than Engel & Volkers First Coast are marked with the listing broker’s name and detailed information about such listings includes the name of the listing brokers. Data provided is deemed reliable but is not guaranteed. Data last updated 2025-11-06T18:25:04.077.

Digital Millennium Copyright Act
 
https://bt-photos.global.ssl.fastly.net/nefar/orig_boomver_1_2066273-2.jpg https://bt-photos.global.ssl.fastly.net/nefar/orig_boomver_1_2066273-2.jpg https://bt-photos.global.ssl.fastly.net/nefar/orig_boomver_1_2066273-2.jpg
Logo
Engel & Volkers First Coast
758 3rd Street South
Jacksonville Beach FL, 32250